逗子の丘に佇むこの新築の家は、日々の暮らしを彩る新たな舞台。
「新築一戸建て」という輝きは、未来への希望を灯すランタンのよう。
JR逗子駅、京急逗子・葉山駅へ繋がる道は、この場所で紡がれるゆとりある日常を作っていきませんか?
| 物件タイトル | 逗子、緑の薫る丘で。新しい暮らしの物語が、ここから始まる。 | ||
|---|---|---|---|
| 所在地 | 逗子市久木8丁目1362-234 | ||
| 交通 | JR横須賀線「逗子」駅 バス14分「夕陽台公園」停歩2分 | ||
| 価格 | 4,990万円(税込) | ||
| 物件番号 | 79227 | 物件種別 | 新築一戸建て |
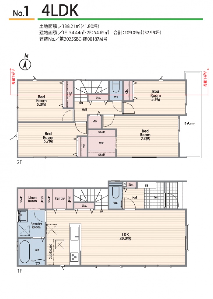
| 販売対象棟 | No.1 | 土地面積 | 138.21㎡ |
|---|---|---|---|
| 建物面積 | 109.09㎡ | 間取 | 4LDK ( LDK20.0帖 その他7.3帖 その他5.7帖 その他5.1帖 その他5.3帖 ) |
| 建物構造 | 木造 2階建 | 完成 | 2025年10月完成予定 |
| 接道状況 | 東 13.00M道路に7.30M接道 | 土地権利 | 所有権 |
| 都市計画 | 市街化区域 | 地目 | 宅地 |
| 用途地域 | 第一種低層住専 | 建ぺい率 | 50% |
| 容積率 | 100% | 建築確認番号 | 第2025SBC-確00187M号 |
| 現況 | 建築中 | 駐車場 | 2台 |
| 引渡し時期 | 相談 | 取引態様 | 媒介 |
| 学区 | 久木小学校 / 久木中学校 | 管理番号 | SK100625YM 0018H |
| 設備 | 東京電力・公営水道・公共下水・都市ガス |
||
| 備考 | 完成物件は契約後3週間以内の決済が基本条件となります。※電波障害によるケーブルテレビ、※共聴アンテナ申込はお客様負担となります。※住宅ローン減税ご利用の場合における住宅省エネルギー性能証明書取得費用は55,000円(税込)となります。 ※フラット35ご利用の場合における適合証明書取得費用は132,000円(税込)となります。 |
||
| 周辺アクセス | 久木小学校: 約1,620m(徒歩約21分) 久木中学校: 約1,160m(徒歩約15分) 周辺環境(LIFE INFORMATION) ハイランド夕陽公園: 約130m(徒歩約2分) 逗子ハイランド郵便局: 約290m(徒歩約4分) 西友逗子ハイランド店: 約300m(徒歩約4分) 久木大池公園: 約550m(徒歩約7分) ミニストップ逗子十二所店: 約1,060m(徒歩約14分) CREATE 逗子久木店: 約1,860m(徒歩約24分) |
||
※地積、建物床面積、仕様に変更が生じる場合があります。
※図面と現況が異なる場合には現況を優先します。
※更新処理のタイミング等により、既に成約済みの場合もございますのでご容赦ください。
毎月の
返済額
0円/月
ボーナス月0円 (年0回)
※ローンシミュレーションは、あくまで試算であり、実際のご返済額とは異なる場合があります。
葉山の絶景を望む、心安らぐロケーション。
三浦郡葉山町堀内
JR横須賀線「逗子」駅バス17分停歩6分
〔3LDK〕
5,480万円(税込)
新築一戸建て
逗子市久木1丁目
JR横須賀線「逗子」駅徒歩10分
〔4LDK〕
4,780万円(税込)
新築一戸建て
葉山の森と風に心遊ぶ新しい住まい。
三浦郡葉山町長柄
JR横須賀線「逗子」駅バス10分停歩2分
〔4LDK〕
4,861.5万円(税込)
新築一戸建て
逗子市久木1丁目
JR横須賀線「逗子」駅徒歩10分
〔4LDK〕
5,080万円(税込)
新築一戸建て
逗子市久木1丁目
JR横須賀線「逗子」駅徒歩10分
〔4LDK〕
4,780万円(税込)
新築一戸建て


〒249-0005
神奈川県逗子市桜山4-6-1 FAX 046-872-3377
Copyright ©
Juwa Real Estate, - All rights reserved