【三浦郡葉山町一色新築一戸建て8,480万円(税込)】住和不動産の物件情報

REALESTATE SEARCH三浦郡葉山町一色 新築一戸建ての物件情報

この物件に関する
お問い合わせTEL 046-872-2255TEL 046-872-2255

販売価格8,480万円(税込)

この物件のオススメポイント!

JR横須賀線「逗子」駅からバスで14分、バス停「葉山町役場」からは徒歩5分という利便性の場所。
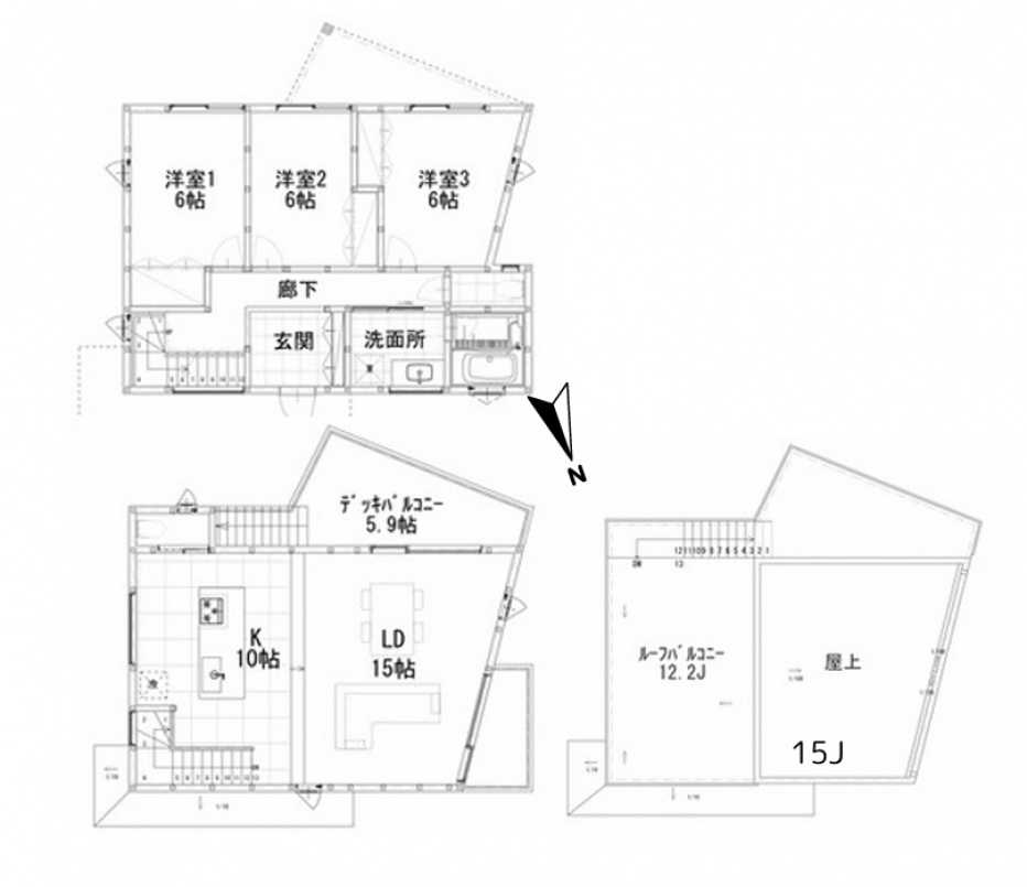
2方向に海を望むことができ、特に27帖の広々とした屋上からは、開放的な眺望を楽しむことができます。
また、リビングダイニングには床暖房、窓には高断熱の樹脂サッシAPW330が採用されており、
快適な居住空間が確保されています。室内にはアイランドキッチンが設置されており、
LDKは15帖とゆとりのある広さです。


三浦郡葉山町一色 新築一戸建ての物件概要

物件タイトル 葉山の風が語りかける、海を望む住まい。
所在地 三浦郡葉山町一色1367-7
交通 JR横須賀線「逗子」駅 バス14分「葉山町役場」停歩5分
価格 8,480万円(税込)
物件番号 79239 物件種別 新築一戸建て
土地面積 155.39㎡
(セットバック後) 
建物面積 102.68㎡ 
間取 3LDK
( 洋室6帖 洋室6帖 洋室6帖 K10帖 その他5.9帖 その他12.2帖 )
建物構造 木造 2階建
完成 2025年10月完成予定  接道状況 南 2.30M道路に12.00M接道 
土地権利 所有権  都市計画 市街化区域 
地目 宅地  用途地域 第一種低層住専 
建ぺい率 40%  容積率 80% 
建築確認番号 第AI建築確認00-2400553号  現況 完成済 
引渡し時期 相談  取引態様 媒介 
管理番号 SK102025YM0021H   
設備 公営水道・公共下水・都市ガス 

※地積、建物床面積、仕様に変更が生じる場合があります。
※図面と現況が異なる場合には現況を優先します。
※更新処理のタイミング等により、既に成約済みの場合もございますのでご容赦ください。

三浦郡葉山町一色 新築一戸建てのローンシュミレーション

物件価格
0万円
頭金
0万円
返済期間
0
金利(年)
0
年間ボーナス回数
0
ボーナス加算額
0

毎月の
返済額

0円/月

ボーナス月0円 (年0回)

※ローンシミュレーションは、あくまで試算であり、実際のご返済額とは異なる場合があります。

三浦郡葉山町一色 新築一戸建てのアクセスマップ

この物件に関する
お問い合わせTEL 046-872-2255TEL 046-872-2255

販売価格8,480万円(税込)

〒249-0005
神奈川県逗子市桜山4-6-1 FAX 046-872-3377