2部屋続きのバルコニー
| 物件タイトル | 南側バルコニーの為陽当たり良好 | ||
|---|---|---|---|
| 特集項目 | 駅まで歩ける物件 | ||
| 所在地 | 横浜市金沢区六浦南4丁目17-4 | ||
| 交通 | 京急逗子線「六浦」駅 徒歩10分 | ||
| 賃料 | 69,000円/月 | ||
| 物件番号 | 79353 | 物件種別 | 賃貸マンション |
| 建物名称 | 六浦台団地 | 敷金 | 1ヶ月 |
|---|---|---|---|
| 礼金 | 1ヶ月 | 保証金 | なし |
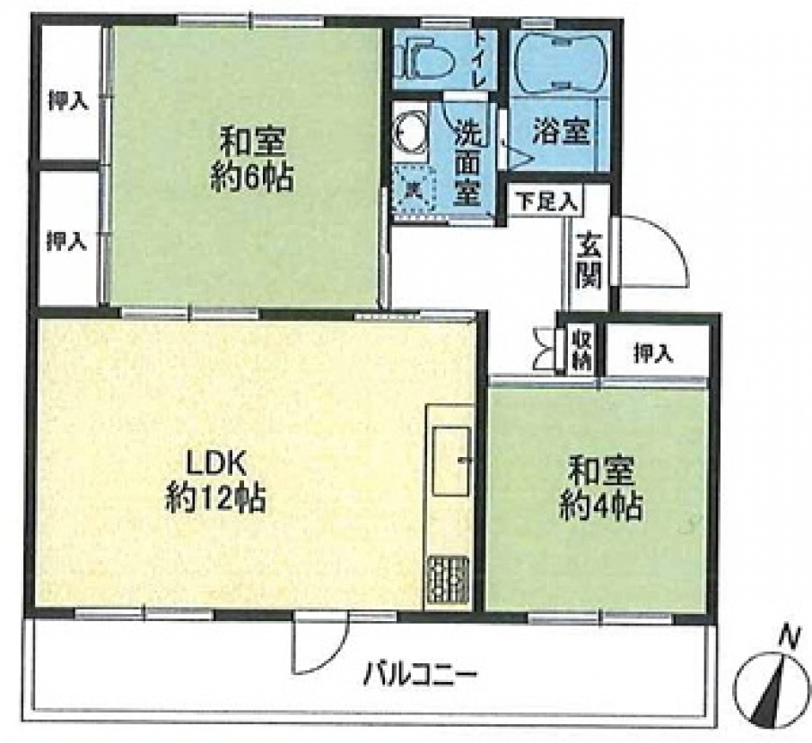
| 専有面積 | 46.34㎡ (内法) | バルコニー面積 | 9.19㎡ |
| 間取 | 2LDK ( 和室6.0帖 和室4.0帖 LDK12.0帖 ) |
建物構造 | RC造 5階建 2階部分 |
| 完成 | 1971年1月 | 現況 | 空室 |
| 駐車場 | 敷地内にあり | 駐車場料金 | 6000円/月 |
| 管理形態 | 日勤 | 管理会社 | 日本総合住生活 |
| 管理費 | なし | 共益費 | なし |
| 権利金 | なし | 更新料 | 1ヶ月 |
| 火災保険料 | 18,000円/2年 | 契約期間 | 2年 |
| 引渡し時期 | 即入居可 | 取引態様 | 媒介 |
| 学区 | 六浦南小学校 / 六浦中学校 |
※地積、建物床面積、仕様に変更が生じる場合があります。
※図面と現況が異なる場合には現況を優先します。
※更新処理のタイミング等により、既に成約済みの場合もございますのでご容赦ください。


〒249-0005
神奈川県逗子市桜山4-6-1 FAX 046-872-3377
Copyright ©
Juwa Real Estate, - All rights reserved